Personalizaciones para garantizar que pueda obtener el elevador de mercancías adecuado para las necesidades específicas de su industria.
Recomendamos y ofrecemos diferentes estilos de elevadores de carga según su aplicación deseada y sus requisitos específicos.
¡Equipo robusto que puede equiparse con diferentes tipos de protección!
COLOSO - 6000 Kg
Aunque son ascensores gearless eficientes, construidos para mover cargas pesadas de hasta 6000 kg, cumplen con la norma EN81.20/50.
COLOSO
Lista de servicios
-
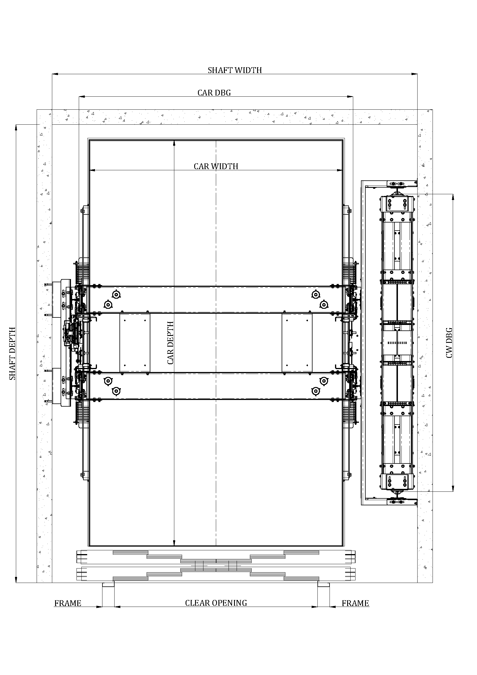
Especificaciones generalesElemento de lista 1Carga máxima Q = 6000 kg. Tracción 4:1. Velocidad máxima: 0,8 m/s. Foso mínimo: 1900 mm con sistema antideriva. Foso mínimo: 1400 mm sin sistema antideriva. Altura mínima: 3700 mm con cabina de 2240 mm de altura exterior. Diseño compacto para una comodidad total. ¡Una de las alturas mínimas requeridas del mercado!
-
Sistema antiderivaElemento de lista 2Sistema antideriva con cuñas mecánicas (Opcional)
-
PuertasElemento de lista 3Elija entre puertas Wittur Pegasus Supra y Meiller Heavy Duty Modelos Meiller Heavy Duty: Apertura lateral de tres paneles TTS/K 31 HD S/K 3 R/L HD CDW = 700 - 2500 mm CDH = 2000 - 4500 mm Apertura central de cuatro paneles TTS/K 28 HD S/K 4 Z HD CDW = 1200 - 3200 mm CDH = 2000 - 4500 mm Apertura central de seis paneles TTS/K 32 HD S/K 6 Z HD CDW = 1800 - 4000 mm CDH = 2000 - 4500 mm
-
Especificaciones eléctricasElemento de lista 4ZenONE con control Thor para elevadores de cargas pesadas



