Personnalisations pour garantir que vous puissiez obtenir le monte-charge adapté aux besoins particuliers de votre secteur.
Nous recommandons et proposons différents styles d'ascenseurs de fret en fonction de votre application souhaitée et de vos exigences spécifiques.
Équipement robuste pouvant être équipé de différents types de protection !
COLOSSE - 6000 Kg
Cependant, des ascenseurs sans engrenage efficaces, conçus pour déplacer des charges lourdes jusqu'à 6 000 kg, conformes à la norme EN81.20/50.
COLOSSE
Liste des services
-
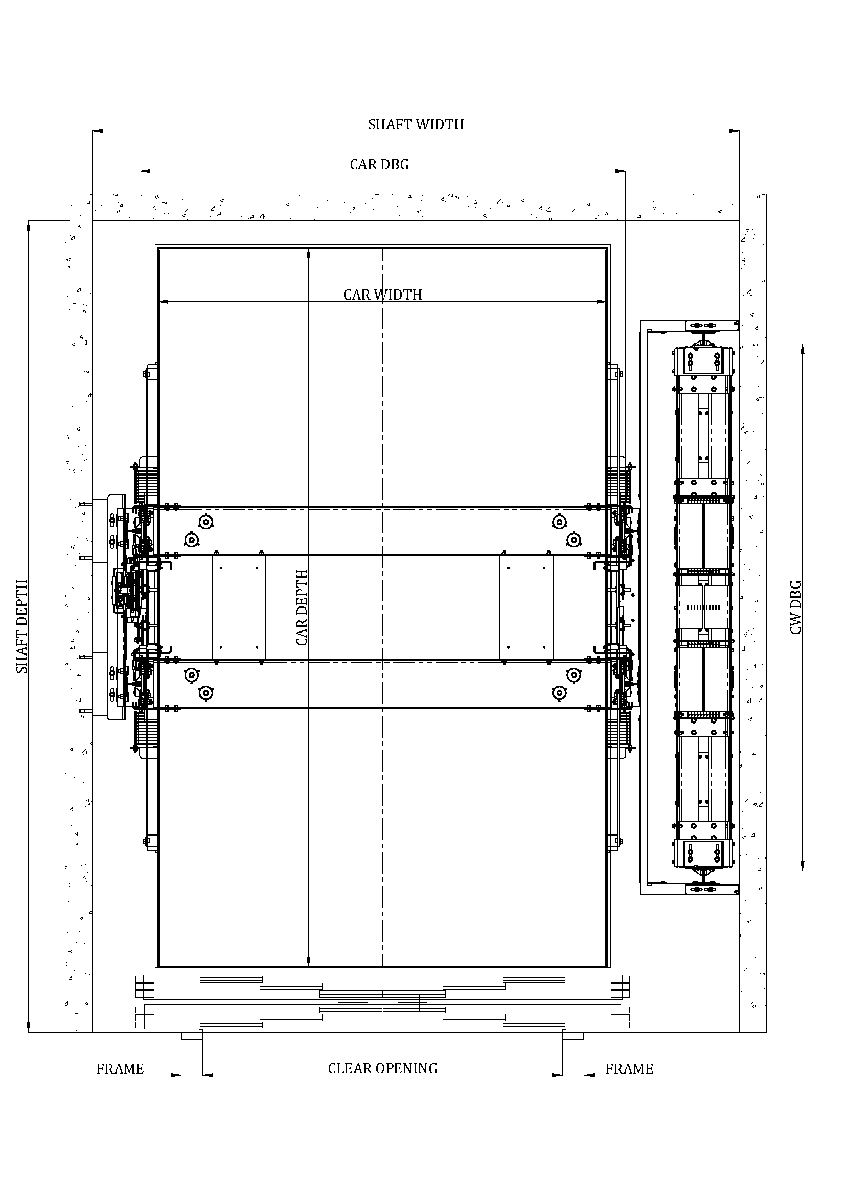
Spécifications généralesÉlément de liste 1Charge maximale Q = 6 000 kg. Traction 4:1. Vitesse maximale 0,8 m/s. Fosse minimale 1 900 mm avec système anti-dérive. Fosse minimale 1 400 mm sans système anti-dérive. Hauteur sous barrot minimale 3 700 mm avec cabine de 2 240 mm de hauteur extérieure. Conception compacte pour un confort total. L'une des plus petites hauteurs sous barrot requises du marché !
-
Système anti-dériveÉlément de liste 2Système anti-dérive avec cales mécaniques (en option)
-
PortesÉlément de liste 3Choisissez entre les portes Wittur Pegasus Supra et Meiller Heavy Duty Modèles Meiller Heavy Duty : Ouverture latérale à trois panneaux TTS/K 31 HD S/K 3 R/L HD CDW = 700 - 2500 mm CDH = 2000 - 4500 mm Ouverture centrale à quatre panneaux TTS/K 28 HD S/K 4 Z HD CDW = 1200 - 3200 mm CDH = 2000 - 4500 mm Ouverture centrale à six panneaux TTS/K 32 HD S/K 6 Z HD CDW = 1800 - 4000 mm CDH = 2000 - 4500 mm
-
Spécifications électriquesÉlément de liste 4ZenONE avec commande Thor pour ascenseurs lourds



